Villa Mirador Vouliagmeni
Description
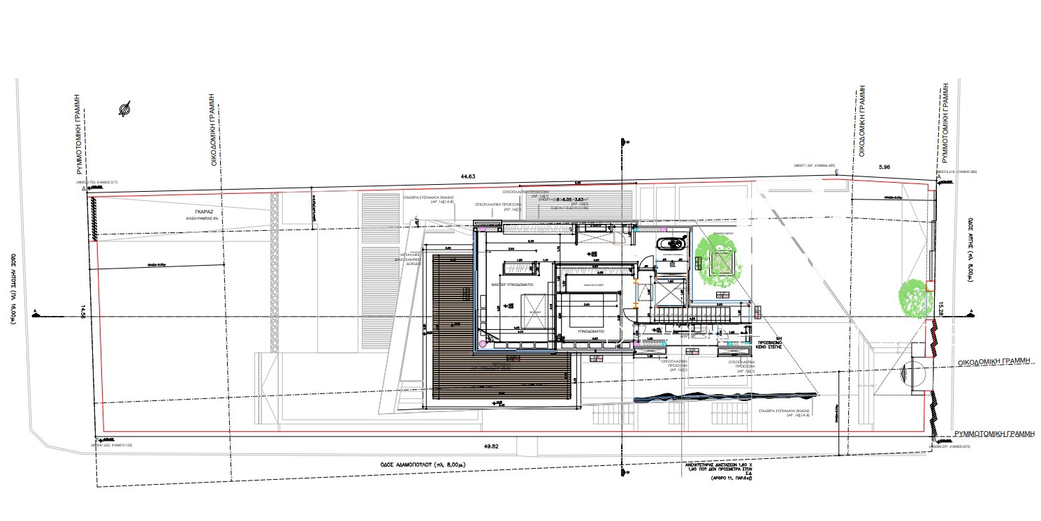
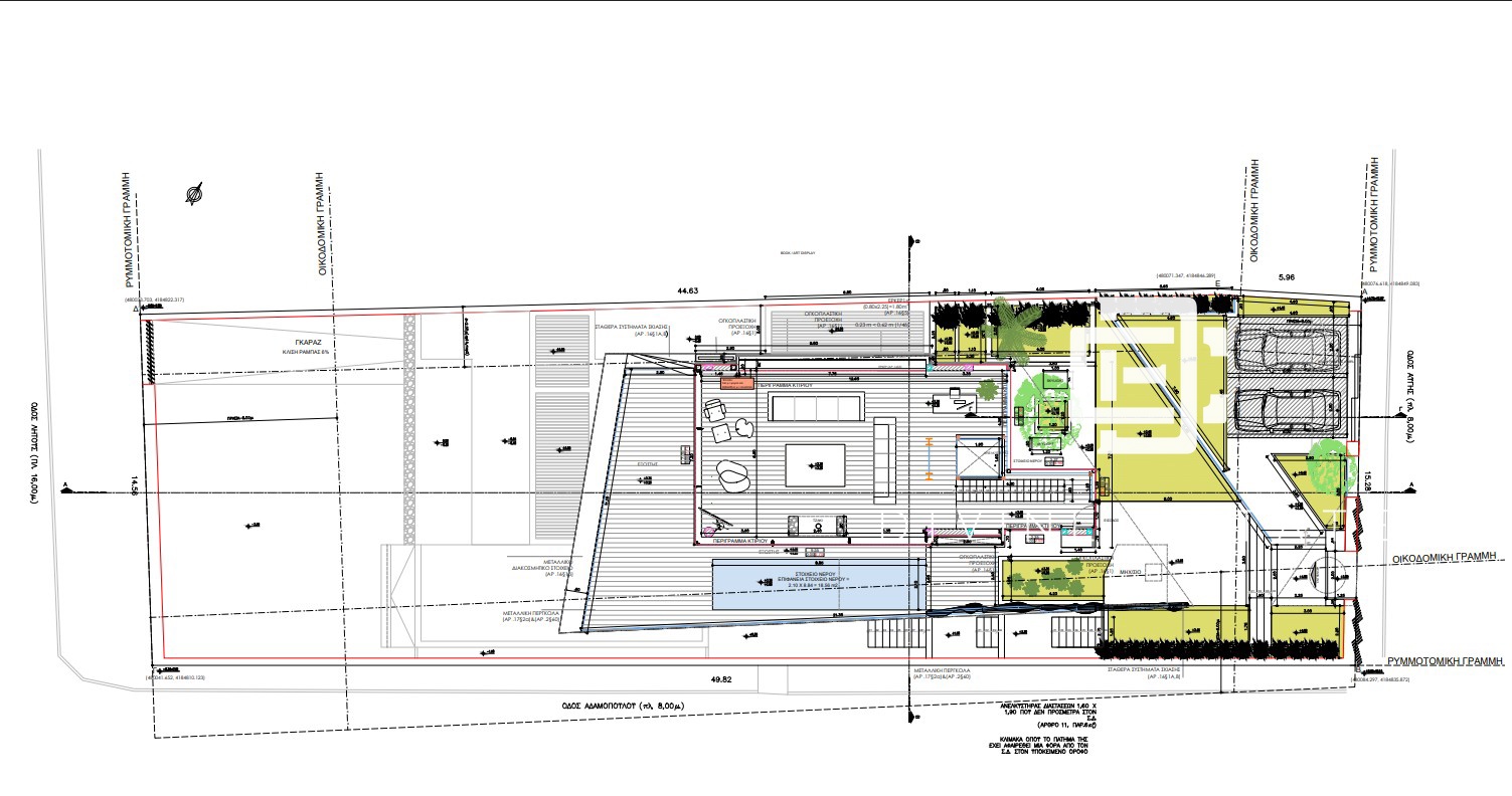
THE SITE The site covers a narrow, sloping plot along the Kavouri seafront and offers a unique blend of natural beauty, architectural potential, and environmental orientation. Location: • Positioned directly on the Kavouri coastline, offering unobstructed sea views and sunset-facing façades • Surrounded by lush natural vegetation, with a strong visual connection to the open sea and sky • Situated within one of the most desirable residential areas along the Athens Riviera • Close proximity to Vouliagmeni, Glyfada, and other key southern suburbs • Accessible to key amenities while retaining a sense of seclusion and tranquility Size: • Though narrow in shape, the sloping terrain allows for an advanced vertical configuration across four levels • The site’s dimensions are fully utilized through a lightweight steel-frame structure that minimizes land disruption • The layout enhances the architectural presence of the building while maintaining sensitivity to the surrounding landscape Facilities: • Designed with sustainable principles in mind, the residence incorporates a green roof, solar panels, and vertical gardens • Features include an ornamental pool beneath an angular skylight, an infinity pool with a cascading waterfall, and multiple planted façades that integrate architecture with nature • The house supports a contemporary lifestyle with adaptable internal spaces, maximizing light, views, and fluidity between indoors and outdoors Design strategy: • The project responds to the site’s natural slope and orientation by developing vertically, allowing the residence to rise above the terrain while preserving open views • A clear hierarchy of spaces—from garden to rooftop—encourages a gradual spatial experience, enhanced by natural light and framed vistas throughout the home Materiality: • A refined palette of volcanic stone, green glass batons, wood, and aluminum forms a rich textural dialogue with the landscape • Climbing plants, a green roof, and a translucent living wall soften the building’s presence and enhance sustainability, while solar panels and environmentally conscious materials underscore the design’s ecological commitment
1707212
Property ID
2021
Property Year
Structure Type
Features and Amenities
Property Map
Map

Information about the property's location
The Athens Riviera stretches along the southern coastline of the Attica peninsula, beginning just south of central Athens and extending from Palaio Faliro to Cape Sounion. This prestigious seaside strip includes high-profile neighborhoods such as Glyfada, Voula, Vouliagmeni, Varkiza, Lagonisi and Anavyssos.
Positioned just 30–45 minutes from central Athens and Athens International Airport, the Riviera offers a seamless blend of Mediterranean leisure and urban accessibility. With its marinas, upscale shopping avenues, beach clubs, and gourmet dining, the Athens Riviera stands as Greece’s answer to the French Riviera.
Read More →














